“豪第坊”4月30日隆重奠基

2008-05-07 阅读次数:16074次

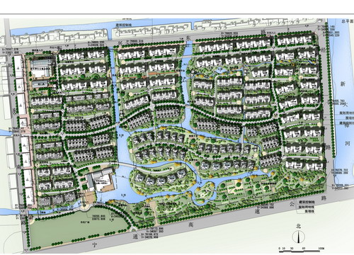
  4月30日,新能源;又推新项目,位于仪征新集镇的豪第坊;项目举行开工奠基仪式。 豪第坊;项目占地近480亩,是由独栋别墅、联排别墅、情景洋房、沿河观景洋房等多种建筑形态组成的高品位大型社区。豪第坊;项目将把汉文化、盐商文化和农耕文化进行提取和糅合,深度诠释骨子里的扬州;这一核心理念。今年国庆节期间该楼盘将上市销售。同时,豪第坊;项目形象代言人杨婧小姐,将项目代言费2万元捐给扬大管理学院,江苏新能源置业集团公司与扬州新能源虎豹房屋开发有限公司的干部职工也向扬大捐献了9.2万元的爱心助成才;基金。

打印本页 关闭窗口

上一篇:
新能源•花样年华编码单页抽奖活动揭晓 “2062”成昨天幸运数字
下一篇:
2007年度扬州商品住宅销售十强 新能源榜上有名
快速链接:

版权所有:新能源置业集团  

苏ICP备11034747号-1    苏公网安备32100302011145 设计制作:扬州大自然网络信息有限公司